Информатор Деньги решил устроить свою прогулку под мостом на кораблике, но так как среди нас нет инженеров, мы взяли специалистов с собой. Они оказались настолько скромными, что просили не афишировать свои фамилии, но подробно объяснили, почему Новый мост больше похож на Потемкинскую деревню.
То, что мост нуждался в ремонте, неоспоримый факт. Со слов инженеров, по нормативам мосты подобного типа, как Новый мост (сборный железобетон) после 40 лет эксплуатации необходимо обследовать не реже, чем 1 раза в год
А на нашего «старичка», в вопросе состояния несущих элементов, обратили внимание только на 49 году эксплуатации. Геодезисты осматривали мост трижды – в 2013, 2015 и 2017 годах. С каждым годом состояние только ухудшалось.
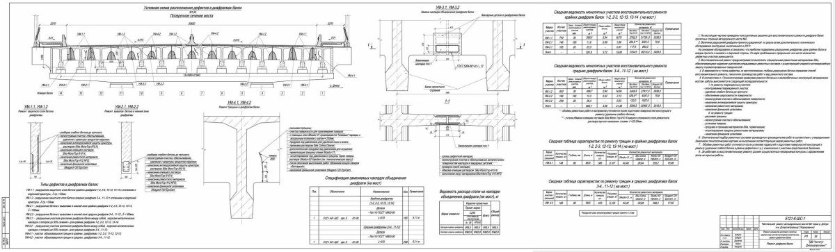
Вот общий план проекта с условными обозначениями.
В своих замечаниях инженеры сверялись с рабочим проектом «Капитальний ремонт автодорожнього моста № 2». Полностью отчет прочитать можно тут. Для понимания: каждый элемент отмеченный на этой схеме, так или иначе, обязательно должен был быть отремонтирован.
Типовой пролет моста состоит из 14 балок. Балки бывают крайние, то есть такие, которые видны со стороны Фестивального причала и со стороны «Паруса», и средние – их можно увидеть, проезжая под мостом.
Крайние балки со стороны Фестивального причала, действительно, сделаны отлично – восстановлен защитный слой бетона, геометрические размеры, нет оголенной арматуры с признаками коррозии, нет волосковых трещин. Балки отшпаклеваны и окрашены. Так они должны выглядеть согласно требований проекта. Вот как выглядит отремонтированный пролетная балка и узел ее опирания на опорную тумбу между осями 33/34, со стороны Фестивального причала. Так должны выглядеть все пролетные балки отмеченные на схеме выше.

Но со стороны недостроенной гостиницы «Парус» балки отремонтировали только в трех пролетах с каждой стороны с левого и правого краев моста. То есть, человек с берега видит, что все в порядке. Но вот в пролетах далее, ближе к середине моста, работы выполнили не полностью.




При этом, аварийные балки, которые были сильно изношены в осях 15/16, 25/27, 37/34 в порядок привели.
ВЫВОД: не все пролеты в балках со стороны «Паруса» выполнены, как это требовалось по проекту. Сделали только часть работы, а когда будут делать остальное – неясно.
Две крайние балки со стороны Фестивального причала и со стороны «Паруса» имеют ребра жесткости с одной из сторон. Остальные 12 балок между ними имеют ребра жесткости с двух сторон. Эти ребра наши спецы называли диафрагмами. Диафрагмы являются главным элементом обеспечения устойчивости всего набора балок в пролете.

Простыми словами: диафрагма – это бетонная перемычка, расположенная перпендикулярно к основной пролетной балке, как вертикальное крылышко. На каждой из диафрагм имеются металлические пластины. Именно эта конструкция не дает «опрокинуться» пролетным балкам и сохраняет пролет моста в том состоянии, которое мы привыкли видеть. Данный узел при всей своей незаметности, на самом деле очень важен для правильной работы пролета моста и, соответственно, для безопасности. Вот как должна выглядеть правильная диафрагма после ремонта.

Таких качественно сделанных диафрагм насчитали с десяток, тогда как по проекту их должно быть отремонтировано 1 тыс. 570 штук. Вот как выглядят остальные.





ВЫВОД: если не выполнить ремонт всех диафрагм, то крайняя балка может «вильнуть», или по-научному, конструкции в пролете может повернуть вокруг продольной их оси без отремонтированных узлов их объединения.
После ремонта дороги между балками насыпался строительный мусор. Он выглядит вот так.

Балка естественным образом может расширяться от перепадов температуры и нагрузок. Когда это происходит, говорят, что «балка играет». Перемещаясь, балка давит на опору моста, а мусор может привести к разрушению балок, и, как следствие, к разрушению самого моста.
ВЫВОД: мусор нужно убрать, пока он не наделал беды.
Как говорят опытные прорабы, нет лучшего стройматериала, чем скотч. Мы можем добавить к нему пену, фанеру и доски.



Для того, чтобы выполнить полностью все работы по проекту, нужно было больше времени. Работу делали наспех, видимо, из-за пари мэра Днепра с президентом. Для того, чтобы все доделать как надо, нужно снова перекрыть мост. Но никто сейчас на это не пойдет. А когда же мост доведут до ума полностью и сколько еще потребуется выделить бюджетных средств для этого ?
Тимофей Нагорняк