Фонд гарантування вкладів продає майно «Промінвестбанку», який був позбавлений ліцензії. На цей раз виставили на продаж відділення банку у місті Бровари за адресою: бульвар Незалежності, 14А – два поверхи будівлі. Скільки коштує така нерухомість та як її прибрати – дізнайтеся у матеріалі Інформатор Гроші.
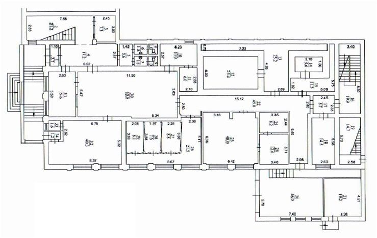
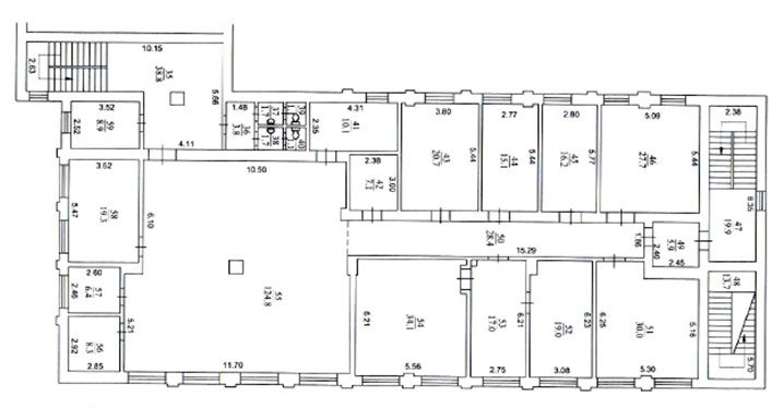
Інформація оприлюднена Фондом гарантування вкладів фізичних освіб (ФГВФО) на сайті ProZorro.Sale. Банківське відділення займало 1й та 2й поверхи будівлі. Заявки від тих, хто бажає придбати цей об’єкт нерухомості, приймають до 20:00 24 січня 2023 року. Наступного дня відбудеться аукціон, на якому визначать переможця.
Стартова вартість активу – 10 млн 690 тис. 388,40 грн. Але надана знижка у 20%. Тому ціна стартує від 8 млн 552 тис. 310,72 грн. Виграє той, хто готовий буде заплатити найбільше (вище за початкову ціну). Знижка надана для того, щоб покупець здійснив у будівлі ремонт газової системи, яка наразі законсервована та не працює. При цьому бажаючим потрібно буде внести 10% вартості банківського відділення в якості застави за участь в аукціоні, а це 855 тис. 231,07 грн. Якщо бажаючих не буде, то актив будуть продавати знову, знижуючи ціну.

Площа приміщень відділення банку складає 1047,4 кв. м. Крім того, продається різний інвентар, який залишився від діяльності банку: банкомати, сейфи, дивани, сигналізація, система відеоспостереження, столи, пристрій безперебійного живлення, тумби, шафи та інше. За усіма питаннями щодо придбання об’єкта та участі в аукціоні потрібно звертатися до Воронкіної Олени Володимирівни за номером (050) 384-94-33, електронна пошта: voronkina.oleksandra@gmail.com .

Покупцями не може бути російська федерація, пов’язані з нею громадяни, зареєстровані у росії компанії. Громади рф не можуть виступати покупцями у цієї будівлі за виключенням тих росіян, хто мешкає в Україні на законних підставах. Також не зможуть придбати майно банку юридичні особи, у яких частка росії або російських громадян (крім тих, хто законно мешкає в Україні законно) складає 10% або більше.

25 лютого, на наступний день після повномасштабного вторгнення, український Національний банк виступив із заявою, що банки держави-агресора більше не працюватимуть в Україні. Разом із резервним банком ліцензії лишився «Промінвестбанк». 11 травня Рада нацбезпеки і оборони України ухвалила рішення про націоналізацію «Промінвестбанку» та конфіскацію його майна. 99,772644% корпоративних прав та майна АТ «Акціонерний комерційний промислово-інвестиційний банк» («Промінвестбанк») належали російській державній корпорації ВЕБ («Внешэкономбанк»).
Ми писали про іншу нерухомість Промінвестбанку, яку продають бізнесу. Зокрема, центральне відділення банку у Києві за 50 млн грн на вул. Софіївській, головне відділення банку у Білій Церкві за 21,4 млн грн, Міжнародний ліцей «Глобус» на Троєщині у Києві (який і фінансувався банком) за 217,2 млн грн, колишнє відділення у Києві на Голосіївському проспекті за 15 млн грн, елітне житло у Козині під Києвом та багато іншого.
Нагадаємо, влітку ми писали, що Національний банк України продає у Броварах землю за 26 млн грн під забудову. А ще за 30 млн грн – у Рожнах під Броварами. Про суди довкола землі Троєщинських Лук та хто до цього має відношення ми писали тут.
Дмитро Чернишов